一、基础信息
价格说明: 345万元—811万元
物业类别:住宅
所在城市:渥太华
剩余房源: 6套
房型: 期房
主力户型: 一居、两居
面积: 55平方米—160平方米
竣工时间:2018年8月
装修状况:豪华精装修
产权说明:永久产权
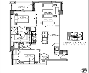
二、户型图


三、项目配套
reRESIDENCES精心打造的豪华设施包括私人酒窖、配有厨房的宽敞聚会厅、商务风格会议室、还有健身中心。您可以享用最优质的健身设备和舒适桑拿、在剧场里欣赏电影、也可以在游戏室和休息室里打台球。当您在雅致的餐厅与朋友共进晚餐时,管家会为您提供贴心服务。当您在精美的SkyLounge放松身心时,也能尽享地标位置窗外独一无二的城市美景。尽揽国会山的灯火辉煌,它已然是渥太华时尚前卫的顶级俱乐部之一。

四、交通情况
从reRESIDENCES到国会大厦、渥太华商业区不过几步之遥。 斯帕克斯步行街、皇后大街的店铺也近在咫尺。 闲庭信步间,便能来到国家艺术中心、里多购物中心以及拜沃德市场,轻松逛遍市中心精致商铺、享受高档餐厅和休闲咖啡屋。 在这里,您不会错过郁金香节日风情。划船畅游里多运河、在渥太华河畔漫步骑车、或去加蒂诺山悠然欣赏山林美景。
五、地理位置
六、项目优势
令人梦寐以求的地标位置. 您在这里欣赏到的景色是整个加拿大的缩影。站在阳台或透过玻璃窗,您可将国会大厦、加蒂诺山以及整个首都渥太华日新月异的全景尽收眼底。 您可以居高临下观看国会山
七、项目特色
在这里,权力与荣耀相遇,精致文雅与从容奢华碰撞。在这里,国会与城市交融,加拿大与全世界互语。在这里,和平塔、百年火炬、国家艺术中心、里多购物中心、著名的拜沃德市场上的商店和餐馆等都离您仅信步之遥。 这就是reRESIDENCES,她让您拥有精致生活、唯美景色。她就在渥太华——全世界最受尊敬国家之一加拿大的首都——等您!

令人梦寐以求的地标位置. 您在这里欣赏到的景色是整个加拿大的缩影。站在阳台或透过玻璃窗,您可将国会大厦、加蒂诺山以及整个首都渥太华日新月异的全景尽收眼底。 您可以居高临下观看国会山前的重大事件,足不出户饱览换岗仪式、加拿大日庆祝活动、国际烟花表演比赛、国会山声光秀。 坐享广阔天空与城市灯火交相辉映,一切尽在reRESIDENCES
八、国内购房
签约10天内:10% 签约60天内:10% 签约90天内: 5%

九、城市综合概况
? 渥太华:加拿大的首都,全国第六大城市 ? 主要人群:政界和商界的知名人士, 众多 国际大使,加拿大政界部门有权利的精英人士。渥太华都会区人口87万左右,英裔占55%,法裔占25%,华裔占3%左右。 ? 知名大学:渥太华大学、卡尔顿大学 ? 最知名建筑:加拿大国会大厦,矗立于国会山麓,俯视渥太华河,加拿大政府的所在地
咨询电话:400-6577-553